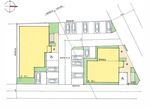
東京都小平市幹線道路沿い新築医療テナントのご紹介です。
・計画地から半径500m以内には、クリニックが3軒(内科、眼科、整形外科)
と競合が少ないエリアです。
・都道16号線に面した視認性の良い場所です。
・南台病院との病診連携も見込めます。
周辺患者層の特徴と生活動線分析
本物件は都道16号線に面した幹線道路沿いに位置し、車両・自転車・徒歩いずれの利用者からも高い認知を得られる立地です。周辺は戸建住宅と集合住宅が混在する落ち着いた住宅エリアで、ファミリー層から高齢者まで幅広い患者層が想定されます。半径500m圏内の競合は内科・眼科・整形外科の計3軒に限られ、診療科によっては空白領域も多く、新規開業でも早期のかかりつけ化が期待できます。通勤・通学動線と生活動線が重なる点も安定した来院につながります。
スタッフ確保・採用環境の考察
小平市・東大和市エリアは都心へのアクセスと住環境のバランスが良く、医療スタッフの居住地としても選ばれやすい地域です。幹線道路沿いでバス利用や自転車通勤がしやすく、車通勤も検討可能な点は採用面での柔軟性を高めます。新築医療テナントであることにより、清潔感や設備面での安心感を訴求でき、求職者にとって働きやすい環境づくりが可能です。近隣に医療機関が少ない点も、地域医療に貢献できる職場として魅力となります。
地域包括支援センター・介護拠点との連携性
小平市は高齢化が進む一方、地域包括ケア体制の整備が進んでおり、地域包括支援センターや訪問看護・介護事業所との連携を構築しやすいエリアです。近隣の南台病院との病診連携により、外来から専門医療、在宅医療へのスムーズな紹介体制が期待できます。慢性疾患管理や高齢者医療において、地域に根差した医療提供を実践しやすい立地条件です。




