東京都世田谷区 駅前生活道路沿い新築ビルテナントのご紹介です。
・祖師谷大蔵駅から徒歩1分とアクセス抜群の立地です。
・祖師谷通りと城山通りの両方からアクセス可能で生活道路沿い
に面して視認性抜群です。
・近隣は、人気の世田谷区の閑静な住宅街で複数の銀行が近くにあって
便利なエリアです。
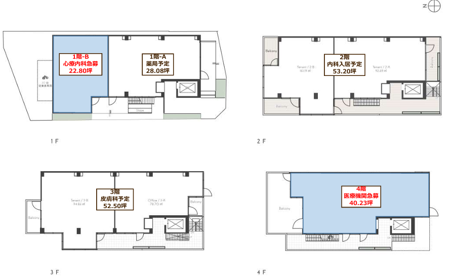
・2区画の募集です。1階B区画に、心療内科様を急募します。
周辺患者層の特徴と生活動線分析
祖師ヶ谷大蔵駅周辺は、世田谷区内でも特に子育て世帯や高齢者の居住が多いエリアです。駅前から生活道路に直結しており、日常的な買い物や銀行利用の動線上に位置しているため、住民の生活導線に自然に組み込まれる立地です。住宅街の中で駅利用者・近隣住民双方からの集患が見込め、安定した診療圏を形成できます。
スタッフ確保・採用環境の考察
世田谷区は医療従事者にとって通勤利便性が高く、特に小田急線沿線からの人材流入が期待できます。周辺には看護・医療系の専門学校もあり、医療事務や助手など若年層の採用にも有利です。さらに地域ブランドとしての人気が高いため、地元で働きたいと考える求職者が多く、安定したスタッフ採用・定着が可能です。
地域包括支援センター・介護拠点との連携性
世田谷区は地域包括ケアシステムの整備が進んでおり、複数の地域包括支援センターや介護事業所が近隣に点在しています。在宅医療や訪問診療との連携が取りやすく、高齢化が進む中で地域医療における役割を果たしやすい環境です。介護拠点との協力により、診療の幅を広げつつ地域貢献を実現できる立地です。





