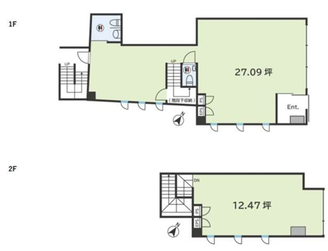
東京都中央区 駅前生活道路沿いビルテナント1・2階のご紹介です。
・茅場町は東京都中央区に位置し、金融街として知られ、交通アクセスが
良好で、ビジネスと下町情緒が共存する魅力的なエリアです。
・茅場町駅、徒歩4分とアクセス抜群です。
・3路線3駅からのアクセス可能で広域からの集患が見込めます。
・フリーレント3ヶ月(工事期間中+フリーレント3ヶ月)つきです。
周辺患者層の特徴と生活動線分析
本物件は金融街として発展する茅場町の中心エリアに位置し、周辺はオフィスワーカーが昼間人口の大半を占めます。平日の日中は外来需要が特に高く、ビジネス層の生活習慣病・腰痛肩こり・眼科・皮膚科・メンタル領域などのニーズが想定されます。また八丁堀・日本橋方面からの徒歩動線も強く、就業前後・昼休み受診の需要が見込まれます。近隣に居住者も点在しており、夕方以降は小児・ファミリー層の受診需要も期待できます。
スタッフ確保・採用環境の考察
中央区は医療人材の志願者が多く、特に医療事務・看護師・臨床検査技師の通勤圏の広さが採用優位性につながります。東京メトロ日比谷線・東西線・都営浅草線など複数路線の乗り入れにより、千葉県・埼玉県・城東エリアからの通勤者も確保しやすい立地です。出退勤が負担になりにくい立地であるため、経験者採用・管理栄養士やリハビリスタッフなど専門系スタッフ採用にも良好な環境といえます。
地域包括支援センター・介護拠点との連携性
中央区には地域包括支援センター・居宅介護支援事業所・訪問看護ステーションが多数展開しており、医療・介護連携体制が充実しています。茅場町周辺は高齢単身者の増加もみられ、慢性疾患フォローや在宅医療・訪問診療との連携ニーズが高いエリアです。企業健診・産業保健・メンタルヘルス対策などビジネス層との連携に加え、介護支援機関への橋渡しを行うことで地域貢献と医療圏内での患者定着が期待できます。



