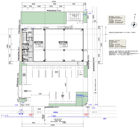
東京都練馬区 幹線道路沿い新築医療テナントのご紹介です。
・幹線道路(練馬所沢線、放射7号線)沿いに面し視認性抜群です。
・西武池袋線 保谷駅、徒歩14分です。
・近隣の保谷厚生病院との病診連携も見込めます。
・同建物1階にコンビニと調剤薬局が開業予定で相乗効果が期待できます。
周辺患者層の特徴と生活動線分析
本物件周辺の練馬区西部エリアは、戸建住宅と中低層マンションが混在する成熟した住宅地で、ファミリー層から高齢者まで幅広い年齢層が居住しています。幹線道路である練馬所沢線・放射7号線沿いは、通勤・通学・買い物動線として日常的に利用されており、徒歩・自転車・自動車による来院が見込めます。生活道路ではなく交通量の多い幹線道路沿い立地のため、視認性による自然流入と、かかりつけ需要の双方を取り込める点が特徴です。
スタッフ確保・採用環境の考察
西武池袋線沿線は、池袋方面・所沢方面双方からの通勤が可能で、医療事務・看護師等の通勤利便性が高いエリアです。住宅地として人気が高く、近隣在住者のパート・時短勤務ニーズも期待できます。新築物件である点は、職場環境を重視する求職者への訴求力が高く、同一建物内に調剤薬局・コンビニが入居予定であることも、スタッフの就業満足度向上につながる要素といえます。
地域包括支援センター・介護拠点との連携性
練馬区は在宅医療・地域包括ケアの整備が進んでおり、周辺には地域包括支援センターや訪問介護事業所が点在しています。また、近隣の保谷厚生病院との病診連携が見込める点は、外来から在宅・入院までを意識した診療体制構築に有利です。高齢化が進む地域特性を踏まえ、慢性疾患管理や在宅医療への橋渡し機能を担うことで、地域医療における中核的クリニックとしてのポジション確立が期待できます。





