神奈川県横浜市中区 駅前商店街沿いビルテナント1階のご紹介です。
・元町中華街駅(乗降約5.5万⼈/⽇)、徒歩4分とアクセス抜群です。
・中華街朱雀⾨前、商店街(南⾨シルクロード)沿いに面し視認性抜群です。
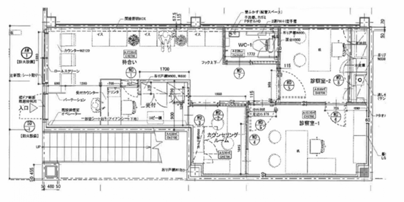
・ 2区画募集(居抜区画、スケルトン区画)⼀括借り応相談
・1区画は⼼療内科クリニック居抜となりますので、現況のまま利⽤可で
コストを抑えた開業プランが可能。
・周辺は商業エリアとなっており、昼間⼈⼝が500m圏内で約2.3万⼈と
なっております。
周辺患者層の特徴と生活動線分析
元町・中華街駅周辺は、観光地としての顔と、元町エリアを中心とした高付加価値な商業・居住エリアの双方を併せ持つ特性があります。500m圏内の昼間人口は約2.3万人と多く、近隣オフィスワーカー、商業従事者、観光客に加え、周辺の分譲マンション居住者や長年居住する高齢層まで幅広い患者層が見込めます。本物件は中華街朱雀門前・南門シルクロード沿いに位置し、駅から商店街へ向かう明確な人流上にあるため、目的来院だけでなく視認による新規受診が発生しやすい立地です。心療内科居抜区画を活用することで、周辺就労者のメンタルヘルス需要も効率的に取り込めます。
スタッフ確保・採用環境の考察
みなとみらい線沿線は、横浜駅・みなとみらい・渋谷方面へのアクセス性が高く、医療スタッフにとって通勤利便性の良いエリアです。駅徒歩4分、商店街沿いという立地は、非常勤医師や看護師、心理職スタッフの確保においても優位性があります。商業エリアであるため、昼間時間帯に勤務可能なスタッフの応募も期待でき、診療時間の柔軟な設定が可能です。また、心療内科居抜区画は初期投資を抑えられるため、開業初期から人件費配分に余裕を持った運営計画を立てやすく、安定した採用・定着につながります。
地域包括支援センター・介護拠点との連携性
横浜市中区は高齢化が進む一方、在宅医療・介護連携体制の整備が進んでいる地域です。周辺には地域包括支援センターや居宅介護支援事業所が点在しており、高齢者の精神面のケアや慢性疾患管理において医療連携を構築しやすい環境です。観光地立地でありながら、地元住民の定期受診ニーズも根強く、地域密着型診療との両立が可能です。近隣の総合病院・専門医療機関への紹介体制も整っており、外来完結型から連携型医療まで柔軟に展開できる物件といえます。



